MONOBLOCCO 90PA
Technologie:
- Spalanie wtórne – System spalania opracowany przez La Nordica-Extraflame umożliwia, dzięki system powietrza wtórnego trzeciorzędowego, dopalanie spalanie, które znacznie zmniejsza emisje.
- System czyszczenia szkła – System wstępnie ogrzanego powietrza, który usuwa wszelkie osady z drzwi przeciwpożarowych szkło
- Ognisko w Nordiker – Do wykonania materiałów ogniotrwałych ścian paleniska La Nordica-Extraflame używa specjalnego materiału o nazwie Nordiker
- Zewnętrzny bezpośredni wlot powietrza (BBC) – System zasysania powietrza, który pobiera świeże powietrze do spalania z zewnątrz, wprowadzając je bezpośrednio do regulatorów powietrza do spalania.
Cechy produktu:
- Grube materiały konstrukcyjne
- Szkło ceramiczne podzielone na 3 części, otwierane krótkie boki
- Wsporniki z kółkami i regulowanymi nóżkami
- Żeliwny uchylny grill z wyjmowaną szufladą na popiół
- Łatwa do sprawdzenia i wymiany komora spalania Nordiker
- Standardowa skrzynia korbowa
- Ruch drzwi z nowym płynnym i miękkim systemem (tłumaczenie podczas podnoszenia)
- Rura wlotu powietrza 150 Ø mm
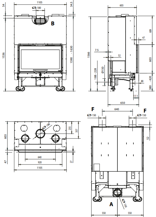
Wymiary:
- Wymiary kominka (szer. x wys. x gł.) – 1105 x 1590 x 650 mm
- Wymiary otworu paleniska (szer. x wys. ) – 830 x 350 mm
- Wymiary paleniska (szer. x wys. x gł.) – 815 x 480 x 325 mm
































