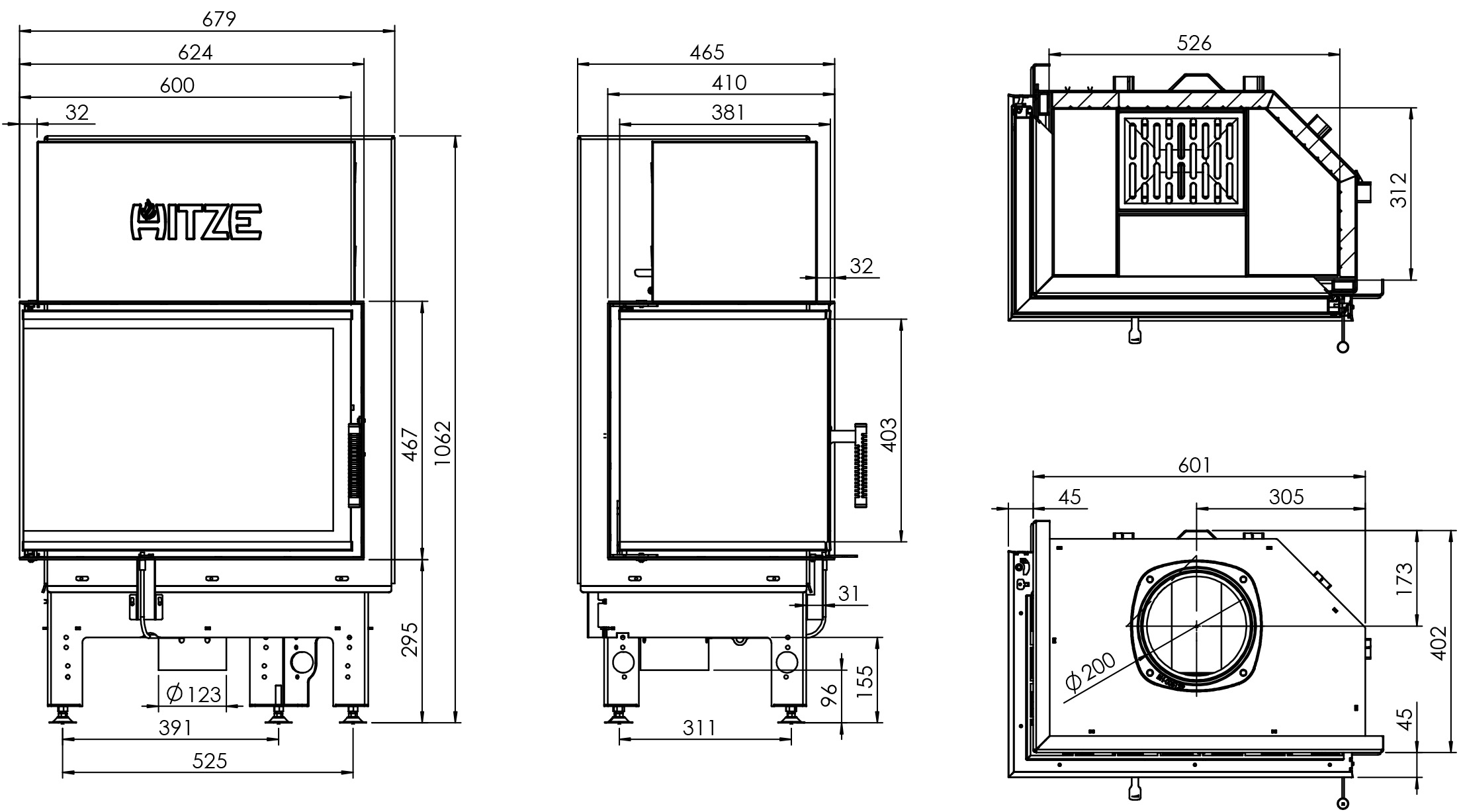
Informacje o produkcie:
- Płaszcz wkładu wykonany ze stali kotłowej gatunku P265GH według EN 10028-2.
- Elementy wkładu produkowane są przy pomocy nowoczesnych urządzeń CNC (Laser 2D, Laser 3D, Prasy krawędziowe).
- Wkład spawany na robocie spawalniczym metodą MAG, gwarantowana wysoka jakość oraz estetyka spoin.
- Drzwi stalowe wykonane ze specjalnego profilu gwarantującego sztywność i wytrzymałość na wysoką temperaturę.
- Istnieje możliwość zakupu wkładu z klamką malowaną proszkowo na kolor czarny.
- Specjalnie zaprojektowana tylna część korpusu umożliwia doprowadzenie powietrza wtórnego do górnej części paleniska. Umożliwia podniesienie sprawności urządzenia poprzez dopalanie spalin.
- Spełnia normy BlmSchV II, ECODESIGN i 15a B-VG.
- Zgodnie z wymogami dyrektywy Ecodesign na terenie państw członkowskich UE: „Ten produkt nie może służyć jako podstawowe źródło ogrzewania”.
Za dodatkową opłatą
- Czarne wyłożenie komory spalania
- Maskownica

































