Wkład kominkowy ARDENTE 105×43.DGS
- Wkład typu tunel do zabudowy dwustronnej lub wyspowej.
- Wkład z powiększoną, głęboką prostokątna komorą spalania dająca możliwość dużych załadunków.
- Uchylny żeliwny ruszt dla wygody czyszczenia paleniska paleniska.
- Nowy typ gilotyny z dostępem serwisowym.
- Dwie żaroodporne dekoracyjne szyby DECOR w standardzie (temperatura pracy do 800 stopni).
- Możliwość zamówienia dedykowanych maskownic (stal malowana proszkowo w kolorze wkładu).
- Drzwi stalowe wykonane ze specjalnego profila gwarantującego sztywność i wytrzymałość na wysoka temperaturę.
- System czystej szyby: obustronne kierownice powietrza wraz z kurtynami powietrznymi.
- Elementy wkładu produkowane są przy pomocy nowoczesnych urządzeń CNC (Laser 2D, 3D, prasy krawędziowe).
- Płaszcz wkładu wykonany ze stali kotłowej gatunku P265GH według EN 10028-2.
- Spełnia normy BImSchV II i ECODESIGN.
- Zgodnie z wymogami dyrektywy Ekodesign na terenie państwa członkowskich UE: “Ten produkt nie może służyć jako podstawowe źródło ogrzewania”.
Za dopłatą
- Czarne wyłożenie komory spalania
- Maskownica 25 mm, 50 mm
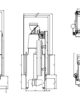
Rysunek techniczny:























